四谷にある店舗デザイン事務所のブログです。新しくオープンするお店の情報や工事中のレポート、ちょっとした店舗デザインのご相談など店舗に関する情報をアップしていきます。最近話題の店や、私たちが見つけた隠れた良店なども御紹介します。
×
[PR]上記の広告は3ヶ月以上新規記事投稿のないブログに表示されています。新しい記事を書く事で広告が消えます。
連休のある日、進行中の現場へ行く途中
表参道の洋書専門店嶋田洋書店によってから、
ちょっと散歩している途中に突然目に飛び込んで来た物体!
モダンな建物が出現しました。

なんだこれは?!

エキスパンドメタル風アルミメッシュでおおわれている建物!!
1Fがアパレル?2Fプレスルームみたい


中央が入口?!
モダンでカッコイイ洗練されたマニッシュな建物です!
表参道を入った裏道には本当にいつも新しい建物が出来、そしてなくなり、
また出現してくる。今の時代を見る事ができる場所なのかな
エムアンドアソシエイツHP
ジャパニーズモダン寿司屋
鮨家きらく
店舗のお悩みお気軽にご相談下さい
繁盛する店づくりなんてあたりまえ!!
ベーカリーキャンペーン4月偏実施中!
無料店舗よろず相談
店舗デザイン事務所エムアンドアソシエイツ東京
TEL:03-3358-2124
担当:キム/ちば
E-mail:chiba@m-and-a-net.com
スタッフBlog:http://ameblo.jp/m-and-a-net/
なんと!ちば まさゆきがついにツイッター始めました!!
ちばtwitter:http://twitter.com/mandachiba
スタッフtwitter:http://twitter.com/mandastaff
この記事をTwitterでリツイートする
RT
<RSSはブックマークみたいなのです>
RSSをクリックし、購読設定すると
定期的に新着情報を知らせてくれますよ。
RSS 0.91 RSS 1.0 RSS 2.0
表参道の洋書専門店嶋田洋書店によってから、
ちょっと散歩している途中に突然目に飛び込んで来た物体!
モダンな建物が出現しました。
なんだこれは?!
エキスパンドメタル風アルミメッシュでおおわれている建物!!
1Fがアパレル?2Fプレスルームみたい
中央が入口?!
モダンでカッコイイ洗練されたマニッシュな建物です!
表参道を入った裏道には本当にいつも新しい建物が出来、そしてなくなり、
また出現してくる。今の時代を見る事ができる場所なのかな
エムアンドアソシエイツHP
ジャパニーズモダン寿司屋
鮨家きらく
店舗のお悩みお気軽にご相談下さい

繁盛する店づくりなんてあたりまえ!!
ベーカリーキャンペーン4月偏実施中!

無料店舗よろず相談
店舗デザイン事務所エムアンドアソシエイツ東京
TEL:03-3358-2124
担当:キム/ちば
E-mail:chiba@m-and-a-net.com
スタッフBlog:http://ameblo.jp/m-and-a-net/
なんと!ちば まさゆきがついにツイッター始めました!!
ちばtwitter:http://twitter.com/mandachiba
スタッフtwitter:http://twitter.com/mandastaff
この記事をTwitterでリツイートする
RT<RSSはブックマークみたいなのです>
RSSをクリックし、購読設定すると
定期的に新着情報を知らせてくれますよ。
RSS 0.91 RSS 1.0 RSS 2.0
PR
久保さんがオーガニックワインショップが
オープン!!
高崎ライブレストランセレンディップ(M&A店舗デザイン)を
コンサルしていただいた久保さんが新高円寺にオーガニックワインショップをオープン
そのワイン試飲会に事務所の丸君と行ってきました〜


奥の方がオーナの久保さんです。







PM07:00よりPM08:00まで試飲会に参加、
高崎セレンディップ北村専務と久しぶりに
お会いし、お試しもでき、又、いろいろな旁々と
コミュニケーションをとらせて頂きました
皆さんも一度訪れてみませんか?
マヴィ新高円寺
エムアンドアソシエイツHP
ライブレストラン
セレンディップ
店舗のお悩みお気軽にご相談下さい
繁盛する店づくりなんてあたりまえ!!
ベーカリーキャンペーン4月偏実施中!
無料店舗よろず相談
店舗デザイン事務所エムアンドアソシエイツ東京
TEL:03-3358-2124
担当:キム/ちば
E-mail:chiba@m-and-a-net.com
スタッフBlog:http://ameblo.jp/m-and-a-net/
なんと!ちば まさゆきがついにツイッター始めました!!
ちばtwitter:http://twitter.com/mandachiba
スタッフtwitter:http://twitter.com/mandastaff
この記事をTwitterでリツイートする
RT
<RSSはブックマークみたいなのです>
RSSをクリックし、購読設定すると
定期的に新着情報を知らせてくれますよ。
RSS 0.91 RSS 1.0 RSS 2.0
オープン!!
高崎ライブレストランセレンディップ(M&A店舗デザイン)を
コンサルしていただいた久保さんが新高円寺にオーガニックワインショップをオープン
そのワイン試飲会に事務所の丸君と行ってきました〜
PM07:00よりPM08:00まで試飲会に参加、
高崎セレンディップ北村専務と久しぶりに
お会いし、お試しもでき、又、いろいろな旁々と
コミュニケーションをとらせて頂きました
皆さんも一度訪れてみませんか?
マヴィ新高円寺
エムアンドアソシエイツHP
ライブレストラン
セレンディップ
店舗のお悩みお気軽にご相談下さい

繁盛する店づくりなんてあたりまえ!!
ベーカリーキャンペーン4月偏実施中!

無料店舗よろず相談
店舗デザイン事務所エムアンドアソシエイツ東京
TEL:03-3358-2124
担当:キム/ちば
E-mail:chiba@m-and-a-net.com
スタッフBlog:http://ameblo.jp/m-and-a-net/
なんと!ちば まさゆきがついにツイッター始めました!!
ちばtwitter:http://twitter.com/mandachiba
スタッフtwitter:http://twitter.com/mandastaff
この記事をTwitterでリツイートする
RT<RSSはブックマークみたいなのです>
RSSをクリックし、購読設定すると
定期的に新着情報を知らせてくれますよ。
RSS 0.91 RSS 1.0 RSS 2.0
東京が堂々3位?!なぜ??
えっ、なんで?!住んでいる我々の方が驚いてしまうが…。
アメリカの男性向け情報サイト「アスクメン・ドットコム」が
まとめた「男が住みたい世界の都市ランキング」で、
東京が3位に選ばれた。
この調査は、各都市の天気や生活費、男女比、生活費の指数は
「iPod nano」と「フェアレディZ」の価格、コンサルタント会社マーサーの
データをもとに算出している。
東京は「リストにある他のどの都市よりも生活費がかさむ」とされ、
生活コストやエコ環境の評価は低いものの、昼間のレジャー部門と
ナイトライフ部門で満点を獲得。去年の14位から大幅にランクアップした。
マイアミやパリ、ロサンゼルスなとを押さえて3位に選ばれるほどの魅力が、
どこにあるのか。
日本在住のジャーナリスト、マーク・シュライバー氏は「ナイトライフ
というからには、フーゾクの影響もあるのではないか」との事。
日本のフーゾクビジネスは素晴らしい。東南アジアに比べたら割高ですが、
サービスの質はピカイチです。最近は外国人向けのデリヘルもできて、
人気を得ている。不況が長引けば、日本のセックス産業は、もっと
インターナショナルになっていくのではないでしょうか。
その期待値が、性都・東京を3位に押し上げたかな?
エムアンドアソシエイツHP
六本木のハイライトはここで
モータウンハウス2
店舗のお悩みお気軽にご相談下さい
繁盛する店づくりなんてあたりまえ!!
ベーカリーキャンペーン4月偏実施中!
無料店舗よろず相談
店舗デザイン事務所エムアンドアソシエイツ東京
TEL:03-3358-2124
担当:キム/ちば
E-mail:chiba@m-and-a-net.com
スタッフBlog:http://ameblo.jp/m-and-a-net/
なんと!ちば まさゆきがついにツイッター始めました!!
ちばtwitter:http://twitter.com/mandachiba
スタッフtwitter:http://twitter.com/mandastaff
この記事をTwitterでリツイートする
RT
<RSSはブックマークみたいなのです>
RSSをクリックし、購読設定すると
定期的に新着情報を知らせてくれますよ。
RSS 0.91 RSS 1.0 RSS 2.0
えっ、なんで?!住んでいる我々の方が驚いてしまうが…。
アメリカの男性向け情報サイト「アスクメン・ドットコム」が
まとめた「男が住みたい世界の都市ランキング」で、
東京が3位に選ばれた。

この調査は、各都市の天気や生活費、男女比、生活費の指数は
「iPod nano」と「フェアレディZ」の価格、コンサルタント会社マーサーの
データをもとに算出している。

東京は「リストにある他のどの都市よりも生活費がかさむ」とされ、
生活コストやエコ環境の評価は低いものの、昼間のレジャー部門と
ナイトライフ部門で満点を獲得。去年の14位から大幅にランクアップした。
マイアミやパリ、ロサンゼルスなとを押さえて3位に選ばれるほどの魅力が、
どこにあるのか。

日本在住のジャーナリスト、マーク・シュライバー氏は「ナイトライフ
というからには、フーゾクの影響もあるのではないか」との事。
日本のフーゾクビジネスは素晴らしい。東南アジアに比べたら割高ですが、
サービスの質はピカイチです。最近は外国人向けのデリヘルもできて、
人気を得ている。不況が長引けば、日本のセックス産業は、もっと
インターナショナルになっていくのではないでしょうか。

その期待値が、性都・東京を3位に押し上げたかな?

エムアンドアソシエイツHP
六本木のハイライトはここで
モータウンハウス2
店舗のお悩みお気軽にご相談下さい

繁盛する店づくりなんてあたりまえ!!
ベーカリーキャンペーン4月偏実施中!

無料店舗よろず相談
店舗デザイン事務所エムアンドアソシエイツ東京
TEL:03-3358-2124
担当:キム/ちば
E-mail:chiba@m-and-a-net.com
スタッフBlog:http://ameblo.jp/m-and-a-net/
なんと!ちば まさゆきがついにツイッター始めました!!
ちばtwitter:http://twitter.com/mandachiba
スタッフtwitter:http://twitter.com/mandastaff
この記事をTwitterでリツイートする
RT<RSSはブックマークみたいなのです>
RSSをクリックし、購読設定すると
定期的に新着情報を知らせてくれますよ。
RSS 0.91 RSS 1.0 RSS 2.0
売場を配置領域(ゾーン)ごとに
区画整理するという意味です
どの位置に、どういうアイテムを、どのくらいの面積で、どのぐらいの
分量を配置するのが最も適切かを設定していきます。
この場合の区画整理は、平面だけではなく立体も含めた3次元の
空間としてとらえます。
商品を横方向に展開することをホリゾンタル(水平)陳列と呼びます。
一般的に女性の目線は高さ140センチ位、男性で160センチくらいと
されていますので、この高さを意識したホリゾンタル陳列は、自然と
目線に入る空間になります。
一方、縦方向に商品を並べるのがバーチカル(垂直)陳列で、
目線の流れを止める事によって、認知されやすくなります。
強調したいアイテムやデザイン、カラーなどを縦横上手に
組み合わせて配置設定すれば、売り上げアップに繋がります。
エムアンドアソシエイツHP
知育玩具専門店
まなびっこあそびっこ
店舗のお悩みお気軽にご相談下さい
繁盛する店づくりなんてあたりまえ!!
ベーカリーキャンペーン4月偏実施中!
無料店舗よろず相談
店舗デザイン事務所エムアンドアソシエイツ東京
TEL:03-3358-2124
担当:キム/ちば
E-mail:chiba@m-and-a-net.com
スタッフBlog:http://ameblo.jp/m-and-a-net/
なんと!ちば まさゆきがついにツイッター始めました!!
ちばtwitter:http://twitter.com/mandachiba
スタッフtwitter:http://twitter.com/mandastaff
この記事をTwitterでリツイートする
RT
<RSSはブックマークみたいなのです>
RSSをクリックし、購読設定すると
定期的に新着情報を知らせてくれますよ。
RSS 0.91 RSS 1.0 RSS 2.0
区画整理するという意味です

どの位置に、どういうアイテムを、どのくらいの面積で、どのぐらいの
分量を配置するのが最も適切かを設定していきます。

この場合の区画整理は、平面だけではなく立体も含めた3次元の
空間としてとらえます。

商品を横方向に展開することをホリゾンタル(水平)陳列と呼びます。
一般的に女性の目線は高さ140センチ位、男性で160センチくらいと
されていますので、この高さを意識したホリゾンタル陳列は、自然と
目線に入る空間になります。

一方、縦方向に商品を並べるのがバーチカル(垂直)陳列で、
目線の流れを止める事によって、認知されやすくなります。
強調したいアイテムやデザイン、カラーなどを縦横上手に
組み合わせて配置設定すれば、売り上げアップに繋がります。

エムアンドアソシエイツHP
知育玩具専門店
まなびっこあそびっこ
店舗のお悩みお気軽にご相談下さい

繁盛する店づくりなんてあたりまえ!!
ベーカリーキャンペーン4月偏実施中!

無料店舗よろず相談
店舗デザイン事務所エムアンドアソシエイツ東京
TEL:03-3358-2124
担当:キム/ちば
E-mail:chiba@m-and-a-net.com
スタッフBlog:http://ameblo.jp/m-and-a-net/
なんと!ちば まさゆきがついにツイッター始めました!!
ちばtwitter:http://twitter.com/mandachiba
スタッフtwitter:http://twitter.com/mandastaff
この記事をTwitterでリツイートする
RT<RSSはブックマークみたいなのです>
RSSをクリックし、購読設定すると
定期的に新着情報を知らせてくれますよ。
RSS 0.91 RSS 1.0 RSS 2.0
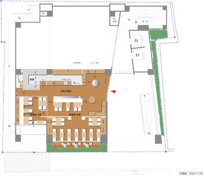
昼はカフェ、夜は日本酒バーの
二毛作カフェデザインです

入口入ってスタンディングカウンターパソコンで利用できるよ〜
厨房とドリンクカウンター
左奥に喫煙席のレイアウト

パース1 入口よりスタンディングカウンターを見る
パース2 中央が喫煙席
パース3 客席よりドリンクバー日本酒ディスプレイを見る
パース4 スタンディングカウンターより客席を見る

右上 光柱イメージ
右中 天井照明イメージ
右下 イス、ソファーイメージ
こんな日本酒カフェバーはいかがですか?
エムアンドアソシエイツHP
ごはん処&カフェ
らてら
店舗のお悩みお気軽にご相談下さい
繁盛する店づくりなんてあたりまえ!!
ベーカリーキャンペーン4月偏実施中!
無料店舗よろず相談
店舗デザイン事務所エムアンドアソシエイツ東京
TEL:03-3358-2124
担当:キム/ちば
E-mail:chiba@m-and-a-net.com
スタッフBlog:http://ameblo.jp/m-and-a-net/
なんと!ちば まさゆきがついにツイッター始めました!!
ちばtwitter:http://twitter.com/mandachiba
スタッフtwitter:http://twitter.com/mandastaff
この記事をTwitterでリツイートする
RT
<RSSはブックマークみたいなのです>
RSSをクリックし、購読設定すると
定期的に新着情報を知らせてくれますよ。
RSS 0.91 RSS 1.0 RSS 2.0
二毛作カフェデザインです

入口入ってスタンディングカウンターパソコンで利用できるよ〜

厨房とドリンクカウンター
左奥に喫煙席のレイアウト
パース1 入口よりスタンディングカウンターを見る
パース2 中央が喫煙席
パース3 客席よりドリンクバー日本酒ディスプレイを見る
パース4 スタンディングカウンターより客席を見る
右上 光柱イメージ
右中 天井照明イメージ
右下 イス、ソファーイメージ
こんな日本酒カフェバーはいかがですか?

エムアンドアソシエイツHP
ごはん処&カフェ
らてら
店舗のお悩みお気軽にご相談下さい

繁盛する店づくりなんてあたりまえ!!
ベーカリーキャンペーン4月偏実施中!

無料店舗よろず相談
店舗デザイン事務所エムアンドアソシエイツ東京
TEL:03-3358-2124
担当:キム/ちば
E-mail:chiba@m-and-a-net.com
スタッフBlog:http://ameblo.jp/m-and-a-net/
なんと!ちば まさゆきがついにツイッター始めました!!
ちばtwitter:http://twitter.com/mandachiba
スタッフtwitter:http://twitter.com/mandastaff
この記事をTwitterでリツイートする
RT<RSSはブックマークみたいなのです>
RSSをクリックし、購読設定すると
定期的に新着情報を知らせてくれますよ。
RSS 0.91 RSS 1.0 RSS 2.0
カウンター
プロフィール
HN:
ちばまさゆき
HP:
性別:
男性
職業:
店舗デザイナー
自己紹介:
エムアンドアソシエイツはお客様とコミュニケーションのキャッチボールをしながら店舗でザインを体現していく『LOVE COMMUNICATION』心からの対話を大切にさせて頂いております。
1991年新春。今は亡き北海道のクライアントの社長より、「おまえのつくるお店は繁盛する。」と、お褒めを頂いた。単純な私はその言葉に勇気を頂き独立を決意したのです。今までにデザインをした店舗は500件を越え、北は稚内、東は根室、西は五島列島、南は鹿児島まで、日本全国及び韓国、台湾、フランスなど海外の物件も手掛けております。
過去の作品 地域/都道府県/業態/店名
渋 谷/東 京/テーマ居酒屋
町家和食京町恋しぐれ
六本木/東 京/寿司屋
/鮨家きらく
海老名/神奈川/居酒屋
/サザンファンの店 TSUNSMI
六本木/東 京/外国人バー
/モータウンハウス2
和歌山/和歌山/レストラン
/サンクシェール
南浦和/埼 玉/ベーカリー
/ブーランジェリーKヨコヤマ
中 郷/茨 城/食品スーパー
/サンユーストアー
中 山/新 潟/食品スーパー
/カワマツ
和歌山/和歌山/複合商業施設
/モンティグレ
ダイワロイネットホテル和歌山
桜木町/神奈川/ブライダルサロン
/メルヴェーユ
銀 座/東 京/宝石店
/パンゲア
店舗に関することならなんでもどうぞ
詳しくはホームページをご覧下さい!
各入賞 入選
商空間デザイン’85〜’90各入選’93入選
ライティングコンテスト
(松下電工) ダイヤモンド賞 入賞多数
ショップ&インテリアコンテスト
(日本板硝子) 入賞多数
ショップシステムコンペション
(店舗システム協会)’93〜’95’98入選
昭和フロントコンクール
(昭和アルミ) 金賞
著書
・飲食店経営者のための
「これからの厨房づくり」
(店舗計画社団法人日本食品衛生協会)
・飲食設計マニュアル
-デザイナーのための飲食店設計
資料集- (六耀社)2009/07発行
講演
・北海道 三笠市商工会青年部
(これからの街づくりと店づくり)
北海道綜合美術専門学校
(店舗設計について)
・東京 サントリー
(現代の商空間プロデュース)
酒有連東京本部(今、商環境は)
アタック70℃クリーニング業界
(これからの商環境は)
翔友会スポーツ店研修会
(スポーツ店と商環境)
セントラル硝子(株)CIP東京会総会
(商環境と客観的視野)
・静岡 酒有連東日本ブロック研修会
(これからの酒販店は)
・焼津 焼津さかなセンター振興会研修
(商環境とは)
・通産省 ロシア中小企業支援事業
ウラジオストック
「オフィス家具及び店舗業務用
什器製造業開業支援セミナー」
三重鈴鹿イオン専門店セミナー
「これからのディスプレイ」
掲載新聞・雑誌
1991.09.13 日刊工業新聞社 流通サービス新聞 「チャレンジ」
.09.26 日経流通新聞 「発 流行人(しかけにん)」
1992.04.09 日経流通新聞 「街づくり、店づくり」
.新春号 郵便貯金ビジネス情報「ザ・ネットワーク アイデアの周辺◆人」
.1月号 ㈱神戸製鋼軽合金伸銅事業本部 けいしんニュースシリーズエッセイ
1992.12月号 日経ギフト 「ギフトビジネスQ&A」
1993.1月号 ヤマハ発動機㈱ ヤマハニュース「NewYear'sTalking集 PART2」
.04.09 日経流通新聞 「街づくり、発想転換」
.08 商店建築【グランディカンティーナ ムラグチ】
.09 酒販ニュース
.09 商業施設 「今月の店舗」 【大木酒店】
.11 商店建築「創造的ローコストのすすめ」【ツバメヤスポーツ】
1994.01 流通サービス新聞 「ステージ’94」
.03 日経ストアデザイン「バリューデザインへの挑戦」【ツバメヤスポーツ】
.05 日経ストアデザイン「ストアフラッシュ」【キャップラガーズ】
.10 日経ストアデザイン「ストアフラッシュ」【モリタ〈眼鏡・時計・宝飾専門店〉】
1995.01 日経ストアデザイン「ストアフラッシュ」【スタインラガークラブ〈ラグビー ビアバー〉】
.04 日経ストアデザイン編「東京デザイナーズレストラン」【スタインラガークラブ】
.06 日経流通新聞 「和食ベンチャー 躍進のカギは… 」
.06 日経ストアデザイン 「企画ノート スーパーストアの開発」 【オフィスマート】
.08 VISUAL MAGAZINE POP EYE 【オフィスマート】
1995.12 日経ストアデザインストアフラッシュ【ゴールデンドロップ〈NYスタイル ワインバー〉】
1996.01 商店建築 「新業態店拝見」 【ゴールデンドロップ】
.02 VISUAL MAGAZINE POP EYE 【コヤナギスポーツ】
.06 商店建築ショッププランニング6月号増刊 【成城宮崎屋〈酒屋〉】【アルファスポーツ苫小牧店】
1997.04 ニチベイ 「商店の窓、まわりプラン」
.12 商店建築 「新業態店拝見」【ラ・イー】
1998.03 商店建築 【ロステッチリア開国屋】
.06 酒販ビジネス夏季号 特別企画 ワイン専門店&ワインバーの設計コンセプト“エスプリッドヴァン柳屋”“ゴールデンドロップ”を題材に
.09 酒販ビジネス秋季号 これぞ専門店「大木酒店」(東京)商品&売場コンセプト
1998.11 酒販ビジネス年末号 「専門店コンセプトと店舗デザイン」下町情緒残した地下セラーの店“鴬谷萬屋酒店”【酒販店】
.11 全酒協ひろばvol.38 ケース・スタディ店舗改装2例「長野県ムラグチ酒店」「埼玉県酒のかづさ屋」【酒販店】
1999.01 食品衛生 新春特別講座 これからの食品業界の経営戦略を探る
.04 酒販ニュース 「売場づくりからの外国ビール 拡売策」
.05 商店建築 「クレームトラブルバスターズ」
.06 商店建築 「クレームトラブルバスターズ」
.06 酒販ビジネス夏季号 「どうなる酒販流通!!業態別研究 酒専門店像」
.07 商店建築 「クレームトラブルバスターズ」
.08 商店建築 「クレームトラブルバスターズ」
.09 商店建築 「クレームトラブルバスターズ」
.10 商店建築 「クレームトラブルバスターズ」
.11 酒販ビジネス年末号 洋酒パブ・ニュートレンド外国人が寄り集うモータウンハウス2」
.11 商店建築 「クレームトラブルバスターズ」
.12 商店建築 「クレームトラブルバスターズ」
2000.07 パンと菓子の専門誌B&C 冨夢冨夢【ベーカリー】
2000.10 酒販ニュース「お店訪問 たなか屋」【酒販店】
.12 商店建築 「ファサードとロゴ」下町のパン屋 冨夢冨夢【ベーカリー】
.12 酒販ビジネス年末号 商品を強化してこそ改装効果…を実践「酒壱番」 市川/千葉【酒販店】
.12 酒販ビジネス年末号 “醗酵醸造食品販売所”謎の(?)看板掲げる「たなか屋」 明石/兵庫【酒販店】
2001.04 商店建築 「わが会心のプレゼンテーション」
.06 酒販ビジネス夏季号 精肉対面、ワイン対話販売でサポーターづくり「エスポアおかだ」 取手/茨城【酒販店】
.08 商店建築 「オーブンフレッシュ・ベーカリーのデザイン」
2002.04 商店建築 「リカーショップの新しいデザイン」
.08 商店建築 「設計者の提案できる“食”の新しい演出法」
.10 酒販ビジネス秋季号 “売れ筋はつくるもの”を地で行く「すずこう酒店」 新小岩/千葉【酒販店】
2003.12 商店建築 「ファサードデザイン」 呉/山城屋【酒販店】
2004.07 パンニュース2004年夏期特集号「ブーランジェリーKヨコヤマ」【ベーカリー】
2004.12 SANYOホットライン No.238 魅せる売場特集「サンユーストアー中郷店」【食品スーパー】
2005.03 商店建築 「サンユーストアー中郷店」【食品スーパー】
.04 商店建築 「メルヴェーユ」【ブライダルサロン】
.09 商店建築10月号増刊 ショップデザインシリーズ店舗ファサード&外装「ワイン &地酒 山城屋」【酒販店】
2005.10 Cafe' sweets カフェスイーツ vol.55 ケーキ店・パン店開業への道<パン店独立開業!理想の店がオープンしました>「ブーランジェリーKヨコヤマ」【ベーカリー】
2007.05 和道・JMG会報「ネクスト」店舗力最前線「これからの店舗力は五感+直感に訴えるファサードデザイン」
2009.05 月刊ベンチャーリンク 売れるデザイン「ブーランジェリーKヨコヤマ」【ベーカリー】
2009.06 月刊ベンチャーリンク 売れるデザイン「居酒屋つなみ」【居酒屋】
1991年新春。今は亡き北海道のクライアントの社長より、「おまえのつくるお店は繁盛する。」と、お褒めを頂いた。単純な私はその言葉に勇気を頂き独立を決意したのです。今までにデザインをした店舗は500件を越え、北は稚内、東は根室、西は五島列島、南は鹿児島まで、日本全国及び韓国、台湾、フランスなど海外の物件も手掛けております。
過去の作品 地域/都道府県/業態/店名
渋 谷/東 京/テーマ居酒屋
町家和食京町恋しぐれ
六本木/東 京/寿司屋
/鮨家きらく
海老名/神奈川/居酒屋
/サザンファンの店 TSUNSMI
六本木/東 京/外国人バー
/モータウンハウス2
和歌山/和歌山/レストラン
/サンクシェール
南浦和/埼 玉/ベーカリー
/ブーランジェリーKヨコヤマ
中 郷/茨 城/食品スーパー
/サンユーストアー
中 山/新 潟/食品スーパー
/カワマツ
和歌山/和歌山/複合商業施設
/モンティグレ
ダイワロイネットホテル和歌山
桜木町/神奈川/ブライダルサロン
/メルヴェーユ
銀 座/東 京/宝石店
/パンゲア
店舗に関することならなんでもどうぞ
詳しくはホームページをご覧下さい!
各入賞 入選
商空間デザイン’85〜’90各入選’93入選
ライティングコンテスト
(松下電工) ダイヤモンド賞 入賞多数
ショップ&インテリアコンテスト
(日本板硝子) 入賞多数
ショップシステムコンペション
(店舗システム協会)’93〜’95’98入選
昭和フロントコンクール
(昭和アルミ) 金賞
著書
・飲食店経営者のための
「これからの厨房づくり」
(店舗計画社団法人日本食品衛生協会)
・飲食設計マニュアル
-デザイナーのための飲食店設計
資料集- (六耀社)2009/07発行
講演
・北海道 三笠市商工会青年部
(これからの街づくりと店づくり)
北海道綜合美術専門学校
(店舗設計について)
・東京 サントリー
(現代の商空間プロデュース)
酒有連東京本部(今、商環境は)
アタック70℃クリーニング業界
(これからの商環境は)
翔友会スポーツ店研修会
(スポーツ店と商環境)
セントラル硝子(株)CIP東京会総会
(商環境と客観的視野)
・静岡 酒有連東日本ブロック研修会
(これからの酒販店は)
・焼津 焼津さかなセンター振興会研修
(商環境とは)
・通産省 ロシア中小企業支援事業
ウラジオストック
「オフィス家具及び店舗業務用
什器製造業開業支援セミナー」
三重鈴鹿イオン専門店セミナー
「これからのディスプレイ」
掲載新聞・雑誌
1991.09.13 日刊工業新聞社 流通サービス新聞 「チャレンジ」
.09.26 日経流通新聞 「発 流行人(しかけにん)」
1992.04.09 日経流通新聞 「街づくり、店づくり」
.新春号 郵便貯金ビジネス情報「ザ・ネットワーク アイデアの周辺◆人」
.1月号 ㈱神戸製鋼軽合金伸銅事業本部 けいしんニュースシリーズエッセイ
1992.12月号 日経ギフト 「ギフトビジネスQ&A」
1993.1月号 ヤマハ発動機㈱ ヤマハニュース「NewYear'sTalking集 PART2」
.04.09 日経流通新聞 「街づくり、発想転換」
.08 商店建築【グランディカンティーナ ムラグチ】
.09 酒販ニュース
.09 商業施設 「今月の店舗」 【大木酒店】
.11 商店建築「創造的ローコストのすすめ」【ツバメヤスポーツ】
1994.01 流通サービス新聞 「ステージ’94」
.03 日経ストアデザイン「バリューデザインへの挑戦」【ツバメヤスポーツ】
.05 日経ストアデザイン「ストアフラッシュ」【キャップラガーズ】
.10 日経ストアデザイン「ストアフラッシュ」【モリタ〈眼鏡・時計・宝飾専門店〉】
1995.01 日経ストアデザイン「ストアフラッシュ」【スタインラガークラブ〈ラグビー ビアバー〉】
.04 日経ストアデザイン編「東京デザイナーズレストラン」【スタインラガークラブ】
.06 日経流通新聞 「和食ベンチャー 躍進のカギは… 」
.06 日経ストアデザイン 「企画ノート スーパーストアの開発」 【オフィスマート】
.08 VISUAL MAGAZINE POP EYE 【オフィスマート】
1995.12 日経ストアデザインストアフラッシュ【ゴールデンドロップ〈NYスタイル ワインバー〉】
1996.01 商店建築 「新業態店拝見」 【ゴールデンドロップ】
.02 VISUAL MAGAZINE POP EYE 【コヤナギスポーツ】
.06 商店建築ショッププランニング6月号増刊 【成城宮崎屋〈酒屋〉】【アルファスポーツ苫小牧店】
1997.04 ニチベイ 「商店の窓、まわりプラン」
.12 商店建築 「新業態店拝見」【ラ・イー】
1998.03 商店建築 【ロステッチリア開国屋】
.06 酒販ビジネス夏季号 特別企画 ワイン専門店&ワインバーの設計コンセプト“エスプリッドヴァン柳屋”“ゴールデンドロップ”を題材に
.09 酒販ビジネス秋季号 これぞ専門店「大木酒店」(東京)商品&売場コンセプト
1998.11 酒販ビジネス年末号 「専門店コンセプトと店舗デザイン」下町情緒残した地下セラーの店“鴬谷萬屋酒店”【酒販店】
.11 全酒協ひろばvol.38 ケース・スタディ店舗改装2例「長野県ムラグチ酒店」「埼玉県酒のかづさ屋」【酒販店】
1999.01 食品衛生 新春特別講座 これからの食品業界の経営戦略を探る
.04 酒販ニュース 「売場づくりからの外国ビール 拡売策」
.05 商店建築 「クレームトラブルバスターズ」
.06 商店建築 「クレームトラブルバスターズ」
.06 酒販ビジネス夏季号 「どうなる酒販流通!!業態別研究 酒専門店像」
.07 商店建築 「クレームトラブルバスターズ」
.08 商店建築 「クレームトラブルバスターズ」
.09 商店建築 「クレームトラブルバスターズ」
.10 商店建築 「クレームトラブルバスターズ」
.11 酒販ビジネス年末号 洋酒パブ・ニュートレンド外国人が寄り集うモータウンハウス2」
.11 商店建築 「クレームトラブルバスターズ」
.12 商店建築 「クレームトラブルバスターズ」
2000.07 パンと菓子の専門誌B&C 冨夢冨夢【ベーカリー】
2000.10 酒販ニュース「お店訪問 たなか屋」【酒販店】
.12 商店建築 「ファサードとロゴ」下町のパン屋 冨夢冨夢【ベーカリー】
.12 酒販ビジネス年末号 商品を強化してこそ改装効果…を実践「酒壱番」 市川/千葉【酒販店】
.12 酒販ビジネス年末号 “醗酵醸造食品販売所”謎の(?)看板掲げる「たなか屋」 明石/兵庫【酒販店】
2001.04 商店建築 「わが会心のプレゼンテーション」
.06 酒販ビジネス夏季号 精肉対面、ワイン対話販売でサポーターづくり「エスポアおかだ」 取手/茨城【酒販店】
.08 商店建築 「オーブンフレッシュ・ベーカリーのデザイン」
2002.04 商店建築 「リカーショップの新しいデザイン」
.08 商店建築 「設計者の提案できる“食”の新しい演出法」
.10 酒販ビジネス秋季号 “売れ筋はつくるもの”を地で行く「すずこう酒店」 新小岩/千葉【酒販店】
2003.12 商店建築 「ファサードデザイン」 呉/山城屋【酒販店】
2004.07 パンニュース2004年夏期特集号「ブーランジェリーKヨコヤマ」【ベーカリー】
2004.12 SANYOホットライン No.238 魅せる売場特集「サンユーストアー中郷店」【食品スーパー】
2005.03 商店建築 「サンユーストアー中郷店」【食品スーパー】
.04 商店建築 「メルヴェーユ」【ブライダルサロン】
.09 商店建築10月号増刊 ショップデザインシリーズ店舗ファサード&外装「ワイン &地酒 山城屋」【酒販店】
2005.10 Cafe' sweets カフェスイーツ vol.55 ケーキ店・パン店開業への道<パン店独立開業!理想の店がオープンしました>「ブーランジェリーKヨコヤマ」【ベーカリー】
2007.05 和道・JMG会報「ネクスト」店舗力最前線「これからの店舗力は五感+直感に訴えるファサードデザイン」
2009.05 月刊ベンチャーリンク 売れるデザイン「ブーランジェリーKヨコヤマ」【ベーカリー】
2009.06 月刊ベンチャーリンク 売れるデザイン「居酒屋つなみ」【居酒屋】
カレンダー
| 02 | 2026/03 | 04 |
| S | M | T | W | T | F | S |
|---|---|---|---|---|---|---|
| 1 | 2 | 3 | 4 | 5 | 6 | 7 |
| 8 | 9 | 10 | 11 | 12 | 13 | 14 |
| 15 | 16 | 17 | 18 | 19 | 20 | 21 |
| 22 | 23 | 24 | 25 | 26 | 27 | 28 |
| 29 | 30 | 31 |
最新記事
(09/06)
(08/30)
(08/06)
(07/30)
(07/27)
最新コメント
[05/15 backlink service]
[10/29 NONAME]
[10/29 NONAME]
[09/16 さかなやひさりん]
[05/29 紅茶専門店リーフィー]
最新トラックバック
フリーエリア
ブログ内検索
最古記事
(01/09)
(01/29)
(01/30)
(02/16)
(09/01)
アクセス解析
