四谷にある店舗デザイン事務所のブログです。新しくオープンするお店の情報や工事中のレポート、ちょっとした店舗デザインのご相談など店舗に関する情報をアップしていきます。最近話題の店や、私たちが見つけた隠れた良店なども御紹介します。
×
[PR]上記の広告は3ヶ月以上新規記事投稿のないブログに表示されています。新しい記事を書く事で広告が消えます。
カラオケ店のフリードリンクバーリニューアルデザイン!!
キラキラドリンクバー
カラオケ店を印象付けるドリンクバーを…
とのオファーデザインをしました
A案
左 キラキラカウンターがドリンク機器が設置されるカウンター
右 壁面はシーズンごとに取り替えられるイラストパネル〜
楽しそう〜

天井アーチにキラキラLED照明が輝いているよ〜
B案
スワロスキーのクリスタルの壁面
ドリンクバーカウンター
右壁面には来店客の写真を額に入れて、
ディスプレイサービス〜
あなたもいかが?キラキラ〜

あなたはA案B案どちらがお好きですか
こんなドリンクバーはどうでしょう〜
エムアンドアソシエイツHP
六本木の夜には
ブレスユー
店舗のお悩みお気軽にご相談下さい
繁盛する店づくりなんてあたりまえ!!
ベーカリーキャンペーン4月偏実施中!
無料店舗よろず相談
店舗デザイン事務所エムアンドアソシエイツ東京
TEL:03-3358-2124
担当:キム/ちば
E-mail:chiba@m-and-a-net.com
スタッフBlog:http://ameblo.jp/m-and-a-net/
なんと!ちば まさゆきがついにツイッター始めました!!
ちばtwitter:http://twitter.com/mandachiba
スタッフtwitter:http://twitter.com/mandastaff
この記事をTwitterでリツイートする
RT
<RSSはブックマークみたいなのです>
RSSをクリックし、購読設定すると
定期的に新着情報を知らせてくれますよ。
RSS 0.91 RSS 1.0 RSS 2.0
キラキラドリンクバー

カラオケ店を印象付けるドリンクバーを…
とのオファーデザインをしました
左 キラキラカウンターがドリンク機器が設置されるカウンター
右 壁面はシーズンごとに取り替えられるイラストパネル〜
楽しそう〜

天井アーチにキラキラLED照明が輝いているよ〜

スワロスキーのクリスタルの壁面
ドリンクバーカウンター
右壁面には来店客の写真を額に入れて、
ディスプレイサービス〜
あなたもいかが?キラキラ〜

あなたはA案B案どちらがお好きですか
こんなドリンクバーはどうでしょう〜

エムアンドアソシエイツHP
六本木の夜には
ブレスユー
店舗のお悩みお気軽にご相談下さい

繁盛する店づくりなんてあたりまえ!!
ベーカリーキャンペーン4月偏実施中!

無料店舗よろず相談
店舗デザイン事務所エムアンドアソシエイツ東京
TEL:03-3358-2124
担当:キム/ちば
E-mail:chiba@m-and-a-net.com
スタッフBlog:http://ameblo.jp/m-and-a-net/
なんと!ちば まさゆきがついにツイッター始めました!!
ちばtwitter:http://twitter.com/mandachiba
スタッフtwitter:http://twitter.com/mandastaff
この記事をTwitterでリツイートする
RT<RSSはブックマークみたいなのです>
RSSをクリックし、購読設定すると
定期的に新着情報を知らせてくれますよ。
RSS 0.91 RSS 1.0 RSS 2.0
PR
日本の中心、上り列車の始発店東京駅構内に
東京ステーションシティサウスコートecuteオープン!
コンセプトは「ニッポンRe-STANDARD」
<あらためて新しい、を日本のイイモノたちから。>
伝統の技術が生かされたあの品この品、
暮らしをもっと楽しくする日本生まれのこだわり雑誌、
日本が世界に誇るようりすぐりのスイーツ、
毎日の食卓を彩る日本各地のおいしいものなど
ニッポンRe-STANDARDをテーマに、
いまどきのライフスタイルにマッチする、
改めて新しいと感じられる
そんなアイテムを集めました。




人々が集まる場所にショップ誕生〜
日本の商店主JR東日本に負けるな!!
自店の個性とオリジナリティーで
お客様を集客…
私たちエムアンドアソシエイツは
今回の商店主を応援致します。
エムアンドアソシエイツHP
2人の大切な時間を
セレンディップ
店舗のお悩みお気軽にご相談下さい
繁盛する店づくりなんてあたりまえ!!
ベーカリーキャンペーン4月偏実施中!
無料店舗よろず相談
店舗デザイン事務所エムアンドアソシエイツ東京
TEL:03-3358-2124
担当:キム/ちば
E-mail:chiba@m-and-a-net.com
スタッフBlog:http://ameblo.jp/m-and-a-net/
なんと!ちば まさゆきがついにツイッター始めました!!
ちばtwitter:http://twitter.com/mandachiba
スタッフtwitter:http://twitter.com/mandastaff
この記事をTwitterでリツイートする
RT
<RSSはブックマークみたいなのです>
RSSをクリックし、購読設定すると
定期的に新着情報を知らせてくれますよ。
RSS 0.91 RSS 1.0 RSS 2.0
東京ステーションシティサウスコートecuteオープン!

コンセプトは「ニッポンRe-STANDARD」
<あらためて新しい、を日本のイイモノたちから。>
伝統の技術が生かされたあの品この品、
暮らしをもっと楽しくする日本生まれのこだわり雑誌、
日本が世界に誇るようりすぐりのスイーツ、
毎日の食卓を彩る日本各地のおいしいものなど
ニッポンRe-STANDARDをテーマに、
いまどきのライフスタイルにマッチする、
改めて新しいと感じられる
そんなアイテムを集めました。

人々が集まる場所にショップ誕生〜

日本の商店主JR東日本に負けるな!!
自店の個性とオリジナリティーで
お客様を集客…
私たちエムアンドアソシエイツは
今回の商店主を応援致します。

エムアンドアソシエイツHP
2人の大切な時間を
セレンディップ
店舗のお悩みお気軽にご相談下さい

繁盛する店づくりなんてあたりまえ!!
ベーカリーキャンペーン4月偏実施中!

無料店舗よろず相談
店舗デザイン事務所エムアンドアソシエイツ東京
TEL:03-3358-2124
担当:キム/ちば
E-mail:chiba@m-and-a-net.com
スタッフBlog:http://ameblo.jp/m-and-a-net/
なんと!ちば まさゆきがついにツイッター始めました!!
ちばtwitter:http://twitter.com/mandachiba
スタッフtwitter:http://twitter.com/mandastaff
この記事をTwitterでリツイートする
RT<RSSはブックマークみたいなのです>
RSSをクリックし、購読設定すると
定期的に新着情報を知らせてくれますよ。
RSS 0.91 RSS 1.0 RSS 2.0
ハートといえば愛情の象徴!
さまざまなハートが愛の気持ちの変化を表している。
恋に落ちた時の甘く優しく満ち足りた感じ、その幸福感にいつも包まれていたい!!そんな人の気持ちがハートのモチーフへ

#1 氷も愛もいつか溶けてしまうものだけど一瞬のハートを楽しみたい。
#2 透明感のあるクリスタルは机の上のLOVERとして愛用。
#3 女性的フォルムの照明。
#4 水に浮かぶキャンドルでハートに火をつけて!
#5 弾力ある質感が心地よいヘッドレスト。
#6 見た目、水枕。しかし使い方は花器。
表面だけでは判断できないのも愛と一緒。
#7 ハートの中に体をうずめる。その安心感は一度手に入れると手放せない。
#8 「私の恋人」という商品名のプラスチック製の写真ホルダー&小物入れ。
#9 料理は愛情をプラスするとよりおいしくなるらしい。
このシチュー鍋で早速お試しを。
エムアンドアソシエイツHP
2人の大切な時間を
セレンディップ
店舗のお悩みお気軽にご相談下さい
繁盛する店づくりなんてあたりまえ!!
ベーカリーキャンペーン4月偏実施中!
無料店舗よろず相談
店舗デザイン事務所エムアンドアソシエイツ東京
TEL:03-3358-2124
担当:キム/ちば
E-mail:chiba@m-and-a-net.com
スタッフBlog:http://ameblo.jp/m-and-a-net/
なんと!ちば まさゆきがついにツイッター始めました!!
ちばtwitter:http://twitter.com/mandachiba
スタッフtwitter:http://twitter.com/mandastaff
この記事をTwitterでリツイートする
RT
<RSSはブックマークみたいなのです>
RSSをクリックし、購読設定すると
定期的に新着情報を知らせてくれますよ。
RSS 0.91 RSS 1.0 RSS 2.0
さまざまなハートが愛の気持ちの変化を表している。
恋に落ちた時の甘く優しく満ち足りた感じ、その幸福感にいつも包まれていたい!!そんな人の気持ちがハートのモチーフへ
#1 氷も愛もいつか溶けてしまうものだけど一瞬のハートを楽しみたい。
#2 透明感のあるクリスタルは机の上のLOVERとして愛用。
#3 女性的フォルムの照明。
#4 水に浮かぶキャンドルでハートに火をつけて!
#5 弾力ある質感が心地よいヘッドレスト。
#6 見た目、水枕。しかし使い方は花器。
表面だけでは判断できないのも愛と一緒。
#7 ハートの中に体をうずめる。その安心感は一度手に入れると手放せない。
#8 「私の恋人」という商品名のプラスチック製の写真ホルダー&小物入れ。
#9 料理は愛情をプラスするとよりおいしくなるらしい。
このシチュー鍋で早速お試しを。
エムアンドアソシエイツHP
2人の大切な時間を
セレンディップ
店舗のお悩みお気軽にご相談下さい

繁盛する店づくりなんてあたりまえ!!
ベーカリーキャンペーン4月偏実施中!

無料店舗よろず相談
店舗デザイン事務所エムアンドアソシエイツ東京
TEL:03-3358-2124
担当:キム/ちば
E-mail:chiba@m-and-a-net.com
スタッフBlog:http://ameblo.jp/m-and-a-net/
なんと!ちば まさゆきがついにツイッター始めました!!
ちばtwitter:http://twitter.com/mandachiba
スタッフtwitter:http://twitter.com/mandastaff
この記事をTwitterでリツイートする
RT<RSSはブックマークみたいなのです>
RSSをクリックし、購読設定すると
定期的に新着情報を知らせてくれますよ。
RSS 0.91 RSS 1.0 RSS 2.0
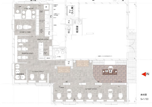
地方の美容室です〜
ちょっと落ち着いてセレブな感じ、
映画のワーンシーンの様なイメージの美容室!!

入口すぐにウェルカムカウンター。
クロークはお客様一人1人仕切のある
お預かり!!

イメージフォト

受付カウンターから主通路を見る
天井の柔らかなR間接照明に
ソファアローレンがウェルカム!!
正面にはなんと燃える炎の暖炉が…

ウェイティングソファーより
セットブースを見る

シャンプブース&奥YUMEブースを見る
シャンプ後方優しい間接照明と
キラキラ輝くシャンデリアがオシャレ
こんなちょっと落ち着いたモダンな
美容室いかがですか
美容室の方のオファー
お待ちしております〜
エムアンドアソシエイツHP
ごっちの美容室はどう?
美容室BUZZ
店舗のお悩みお気軽にご相談下さい
繁盛する店づくりなんてあたりまえ!!
ベーカリーキャンペーン4月偏実施中!
無料店舗よろず相談
店舗デザイン事務所エムアンドアソシエイツ東京
TEL:03-3358-2124
担当:キム/ちば
E-mail:chiba@m-and-a-net.com
スタッフBlog:http://ameblo.jp/m-and-a-net/
なんと!ちば まさゆきがついにツイッター始めました!!
ちばtwitter:http://twitter.com/mandachiba
スタッフtwitter:http://twitter.com/mandastaff
この記事をTwitterでリツイートする
RT
<RSSはブックマークみたいなのです>
RSSをクリックし、購読設定すると
定期的に新着情報を知らせてくれますよ。
RSS 0.91 RSS 1.0 RSS 2.0
ちょっと落ち着いてセレブな感じ、
映画のワーンシーンの様なイメージの美容室!!

入口すぐにウェルカムカウンター。
クロークはお客様一人1人仕切のある
お預かり!!

イメージフォト
受付カウンターから主通路を見る
天井の柔らかなR間接照明に
ソファアローレンがウェルカム!!

正面にはなんと燃える炎の暖炉が…

ウェイティングソファーより
セットブースを見る

シャンプブース&奥YUMEブースを見る
シャンプ後方優しい間接照明と
キラキラ輝くシャンデリアがオシャレ
こんなちょっと落ち着いたモダンな
美容室いかがですか

美容室の方のオファー
お待ちしております〜

エムアンドアソシエイツHP
ごっちの美容室はどう?
美容室BUZZ
店舗のお悩みお気軽にご相談下さい

繁盛する店づくりなんてあたりまえ!!
ベーカリーキャンペーン4月偏実施中!

無料店舗よろず相談
店舗デザイン事務所エムアンドアソシエイツ東京
TEL:03-3358-2124
担当:キム/ちば
E-mail:chiba@m-and-a-net.com
スタッフBlog:http://ameblo.jp/m-and-a-net/
なんと!ちば まさゆきがついにツイッター始めました!!
ちばtwitter:http://twitter.com/mandachiba
スタッフtwitter:http://twitter.com/mandastaff
この記事をTwitterでリツイートする
RT<RSSはブックマークみたいなのです>
RSSをクリックし、購読設定すると
定期的に新着情報を知らせてくれますよ。
RSS 0.91 RSS 1.0 RSS 2.0
大人気「チャットルーレット」はなぜウケる
世の中よっぽどヒマ人が多い、
話題のツイッターを超える勢いで
利用者が増えているITツールがある
「チャットルーレット」
ウェブカメラを使ったライブチャットサービスで、
世界中の誰かと繋がるかわからないドキドキ感が
ウケているのだ!!

開発したのはロシアの高校生、
アンドレイ・テルのフスキー君は大富豪に!!
すごいな〜
エムアンドアソシエイツHP
花見の帰りに
桜庵
店舗のお悩みお気軽にご相談下さい
繁盛する店づくりなんてあたりまえ!!
ベーカリーキャンペーン4月偏実施中!
無料店舗よろず相談
店舗デザイン事務所エムアンドアソシエイツ東京
TEL:03-3358-2124
担当:キム/ちば
E-mail:chiba@m-and-a-net.com
スタッフBlog:http://ameblo.jp/m-and-a-net/
なんと!ちば まさゆきがついにツイッター始めました!!
ちばtwitter:http://twitter.com/mandachiba
スタッフtwitter:http://twitter.com/mandastaff
この記事をTwitterでリツイートする
RT
<RSSはブックマークみたいなのです>
RSSをクリックし、購読設定すると
定期的に新着情報を知らせてくれますよ。
RSS 0.91 RSS 1.0 RSS 2.0

世の中よっぽどヒマ人が多い、
話題のツイッターを超える勢いで
利用者が増えているITツールがある

「チャットルーレット」
ウェブカメラを使ったライブチャットサービスで、
世界中の誰かと繋がるかわからないドキドキ感が
ウケているのだ!!

開発したのはロシアの高校生、
アンドレイ・テルのフスキー君は大富豪に!!
すごいな〜

エムアンドアソシエイツHP
花見の帰りに
桜庵
店舗のお悩みお気軽にご相談下さい

繁盛する店づくりなんてあたりまえ!!
ベーカリーキャンペーン4月偏実施中!

無料店舗よろず相談
店舗デザイン事務所エムアンドアソシエイツ東京
TEL:03-3358-2124
担当:キム/ちば
E-mail:chiba@m-and-a-net.com
スタッフBlog:http://ameblo.jp/m-and-a-net/
なんと!ちば まさゆきがついにツイッター始めました!!
ちばtwitter:http://twitter.com/mandachiba
スタッフtwitter:http://twitter.com/mandastaff
この記事をTwitterでリツイートする
RT<RSSはブックマークみたいなのです>
RSSをクリックし、購読設定すると
定期的に新着情報を知らせてくれますよ。
RSS 0.91 RSS 1.0 RSS 2.0
カウンター
プロフィール
HN:
ちばまさゆき
HP:
性別:
男性
職業:
店舗デザイナー
自己紹介:
エムアンドアソシエイツはお客様とコミュニケーションのキャッチボールをしながら店舗でザインを体現していく『LOVE COMMUNICATION』心からの対話を大切にさせて頂いております。
1991年新春。今は亡き北海道のクライアントの社長より、「おまえのつくるお店は繁盛する。」と、お褒めを頂いた。単純な私はその言葉に勇気を頂き独立を決意したのです。今までにデザインをした店舗は500件を越え、北は稚内、東は根室、西は五島列島、南は鹿児島まで、日本全国及び韓国、台湾、フランスなど海外の物件も手掛けております。
過去の作品 地域/都道府県/業態/店名
渋 谷/東 京/テーマ居酒屋
町家和食京町恋しぐれ
六本木/東 京/寿司屋
/鮨家きらく
海老名/神奈川/居酒屋
/サザンファンの店 TSUNSMI
六本木/東 京/外国人バー
/モータウンハウス2
和歌山/和歌山/レストラン
/サンクシェール
南浦和/埼 玉/ベーカリー
/ブーランジェリーKヨコヤマ
中 郷/茨 城/食品スーパー
/サンユーストアー
中 山/新 潟/食品スーパー
/カワマツ
和歌山/和歌山/複合商業施設
/モンティグレ
ダイワロイネットホテル和歌山
桜木町/神奈川/ブライダルサロン
/メルヴェーユ
銀 座/東 京/宝石店
/パンゲア
店舗に関することならなんでもどうぞ
詳しくはホームページをご覧下さい!
各入賞 入選
商空間デザイン’85〜’90各入選’93入選
ライティングコンテスト
(松下電工) ダイヤモンド賞 入賞多数
ショップ&インテリアコンテスト
(日本板硝子) 入賞多数
ショップシステムコンペション
(店舗システム協会)’93〜’95’98入選
昭和フロントコンクール
(昭和アルミ) 金賞
著書
・飲食店経営者のための
「これからの厨房づくり」
(店舗計画社団法人日本食品衛生協会)
・飲食設計マニュアル
-デザイナーのための飲食店設計
資料集- (六耀社)2009/07発行
講演
・北海道 三笠市商工会青年部
(これからの街づくりと店づくり)
北海道綜合美術専門学校
(店舗設計について)
・東京 サントリー
(現代の商空間プロデュース)
酒有連東京本部(今、商環境は)
アタック70℃クリーニング業界
(これからの商環境は)
翔友会スポーツ店研修会
(スポーツ店と商環境)
セントラル硝子(株)CIP東京会総会
(商環境と客観的視野)
・静岡 酒有連東日本ブロック研修会
(これからの酒販店は)
・焼津 焼津さかなセンター振興会研修
(商環境とは)
・通産省 ロシア中小企業支援事業
ウラジオストック
「オフィス家具及び店舗業務用
什器製造業開業支援セミナー」
三重鈴鹿イオン専門店セミナー
「これからのディスプレイ」
掲載新聞・雑誌
1991.09.13 日刊工業新聞社 流通サービス新聞 「チャレンジ」
.09.26 日経流通新聞 「発 流行人(しかけにん)」
1992.04.09 日経流通新聞 「街づくり、店づくり」
.新春号 郵便貯金ビジネス情報「ザ・ネットワーク アイデアの周辺◆人」
.1月号 ㈱神戸製鋼軽合金伸銅事業本部 けいしんニュースシリーズエッセイ
1992.12月号 日経ギフト 「ギフトビジネスQ&A」
1993.1月号 ヤマハ発動機㈱ ヤマハニュース「NewYear'sTalking集 PART2」
.04.09 日経流通新聞 「街づくり、発想転換」
.08 商店建築【グランディカンティーナ ムラグチ】
.09 酒販ニュース
.09 商業施設 「今月の店舗」 【大木酒店】
.11 商店建築「創造的ローコストのすすめ」【ツバメヤスポーツ】
1994.01 流通サービス新聞 「ステージ’94」
.03 日経ストアデザイン「バリューデザインへの挑戦」【ツバメヤスポーツ】
.05 日経ストアデザイン「ストアフラッシュ」【キャップラガーズ】
.10 日経ストアデザイン「ストアフラッシュ」【モリタ〈眼鏡・時計・宝飾専門店〉】
1995.01 日経ストアデザイン「ストアフラッシュ」【スタインラガークラブ〈ラグビー ビアバー〉】
.04 日経ストアデザイン編「東京デザイナーズレストラン」【スタインラガークラブ】
.06 日経流通新聞 「和食ベンチャー 躍進のカギは… 」
.06 日経ストアデザイン 「企画ノート スーパーストアの開発」 【オフィスマート】
.08 VISUAL MAGAZINE POP EYE 【オフィスマート】
1995.12 日経ストアデザインストアフラッシュ【ゴールデンドロップ〈NYスタイル ワインバー〉】
1996.01 商店建築 「新業態店拝見」 【ゴールデンドロップ】
.02 VISUAL MAGAZINE POP EYE 【コヤナギスポーツ】
.06 商店建築ショッププランニング6月号増刊 【成城宮崎屋〈酒屋〉】【アルファスポーツ苫小牧店】
1997.04 ニチベイ 「商店の窓、まわりプラン」
.12 商店建築 「新業態店拝見」【ラ・イー】
1998.03 商店建築 【ロステッチリア開国屋】
.06 酒販ビジネス夏季号 特別企画 ワイン専門店&ワインバーの設計コンセプト“エスプリッドヴァン柳屋”“ゴールデンドロップ”を題材に
.09 酒販ビジネス秋季号 これぞ専門店「大木酒店」(東京)商品&売場コンセプト
1998.11 酒販ビジネス年末号 「専門店コンセプトと店舗デザイン」下町情緒残した地下セラーの店“鴬谷萬屋酒店”【酒販店】
.11 全酒協ひろばvol.38 ケース・スタディ店舗改装2例「長野県ムラグチ酒店」「埼玉県酒のかづさ屋」【酒販店】
1999.01 食品衛生 新春特別講座 これからの食品業界の経営戦略を探る
.04 酒販ニュース 「売場づくりからの外国ビール 拡売策」
.05 商店建築 「クレームトラブルバスターズ」
.06 商店建築 「クレームトラブルバスターズ」
.06 酒販ビジネス夏季号 「どうなる酒販流通!!業態別研究 酒専門店像」
.07 商店建築 「クレームトラブルバスターズ」
.08 商店建築 「クレームトラブルバスターズ」
.09 商店建築 「クレームトラブルバスターズ」
.10 商店建築 「クレームトラブルバスターズ」
.11 酒販ビジネス年末号 洋酒パブ・ニュートレンド外国人が寄り集うモータウンハウス2」
.11 商店建築 「クレームトラブルバスターズ」
.12 商店建築 「クレームトラブルバスターズ」
2000.07 パンと菓子の専門誌B&C 冨夢冨夢【ベーカリー】
2000.10 酒販ニュース「お店訪問 たなか屋」【酒販店】
.12 商店建築 「ファサードとロゴ」下町のパン屋 冨夢冨夢【ベーカリー】
.12 酒販ビジネス年末号 商品を強化してこそ改装効果…を実践「酒壱番」 市川/千葉【酒販店】
.12 酒販ビジネス年末号 “醗酵醸造食品販売所”謎の(?)看板掲げる「たなか屋」 明石/兵庫【酒販店】
2001.04 商店建築 「わが会心のプレゼンテーション」
.06 酒販ビジネス夏季号 精肉対面、ワイン対話販売でサポーターづくり「エスポアおかだ」 取手/茨城【酒販店】
.08 商店建築 「オーブンフレッシュ・ベーカリーのデザイン」
2002.04 商店建築 「リカーショップの新しいデザイン」
.08 商店建築 「設計者の提案できる“食”の新しい演出法」
.10 酒販ビジネス秋季号 “売れ筋はつくるもの”を地で行く「すずこう酒店」 新小岩/千葉【酒販店】
2003.12 商店建築 「ファサードデザイン」 呉/山城屋【酒販店】
2004.07 パンニュース2004年夏期特集号「ブーランジェリーKヨコヤマ」【ベーカリー】
2004.12 SANYOホットライン No.238 魅せる売場特集「サンユーストアー中郷店」【食品スーパー】
2005.03 商店建築 「サンユーストアー中郷店」【食品スーパー】
.04 商店建築 「メルヴェーユ」【ブライダルサロン】
.09 商店建築10月号増刊 ショップデザインシリーズ店舗ファサード&外装「ワイン &地酒 山城屋」【酒販店】
2005.10 Cafe' sweets カフェスイーツ vol.55 ケーキ店・パン店開業への道<パン店独立開業!理想の店がオープンしました>「ブーランジェリーKヨコヤマ」【ベーカリー】
2007.05 和道・JMG会報「ネクスト」店舗力最前線「これからの店舗力は五感+直感に訴えるファサードデザイン」
2009.05 月刊ベンチャーリンク 売れるデザイン「ブーランジェリーKヨコヤマ」【ベーカリー】
2009.06 月刊ベンチャーリンク 売れるデザイン「居酒屋つなみ」【居酒屋】
1991年新春。今は亡き北海道のクライアントの社長より、「おまえのつくるお店は繁盛する。」と、お褒めを頂いた。単純な私はその言葉に勇気を頂き独立を決意したのです。今までにデザインをした店舗は500件を越え、北は稚内、東は根室、西は五島列島、南は鹿児島まで、日本全国及び韓国、台湾、フランスなど海外の物件も手掛けております。
過去の作品 地域/都道府県/業態/店名
渋 谷/東 京/テーマ居酒屋
町家和食京町恋しぐれ
六本木/東 京/寿司屋
/鮨家きらく
海老名/神奈川/居酒屋
/サザンファンの店 TSUNSMI
六本木/東 京/外国人バー
/モータウンハウス2
和歌山/和歌山/レストラン
/サンクシェール
南浦和/埼 玉/ベーカリー
/ブーランジェリーKヨコヤマ
中 郷/茨 城/食品スーパー
/サンユーストアー
中 山/新 潟/食品スーパー
/カワマツ
和歌山/和歌山/複合商業施設
/モンティグレ
ダイワロイネットホテル和歌山
桜木町/神奈川/ブライダルサロン
/メルヴェーユ
銀 座/東 京/宝石店
/パンゲア
店舗に関することならなんでもどうぞ
詳しくはホームページをご覧下さい!
各入賞 入選
商空間デザイン’85〜’90各入選’93入選
ライティングコンテスト
(松下電工) ダイヤモンド賞 入賞多数
ショップ&インテリアコンテスト
(日本板硝子) 入賞多数
ショップシステムコンペション
(店舗システム協会)’93〜’95’98入選
昭和フロントコンクール
(昭和アルミ) 金賞
著書
・飲食店経営者のための
「これからの厨房づくり」
(店舗計画社団法人日本食品衛生協会)
・飲食設計マニュアル
-デザイナーのための飲食店設計
資料集- (六耀社)2009/07発行
講演
・北海道 三笠市商工会青年部
(これからの街づくりと店づくり)
北海道綜合美術専門学校
(店舗設計について)
・東京 サントリー
(現代の商空間プロデュース)
酒有連東京本部(今、商環境は)
アタック70℃クリーニング業界
(これからの商環境は)
翔友会スポーツ店研修会
(スポーツ店と商環境)
セントラル硝子(株)CIP東京会総会
(商環境と客観的視野)
・静岡 酒有連東日本ブロック研修会
(これからの酒販店は)
・焼津 焼津さかなセンター振興会研修
(商環境とは)
・通産省 ロシア中小企業支援事業
ウラジオストック
「オフィス家具及び店舗業務用
什器製造業開業支援セミナー」
三重鈴鹿イオン専門店セミナー
「これからのディスプレイ」
掲載新聞・雑誌
1991.09.13 日刊工業新聞社 流通サービス新聞 「チャレンジ」
.09.26 日経流通新聞 「発 流行人(しかけにん)」
1992.04.09 日経流通新聞 「街づくり、店づくり」
.新春号 郵便貯金ビジネス情報「ザ・ネットワーク アイデアの周辺◆人」
.1月号 ㈱神戸製鋼軽合金伸銅事業本部 けいしんニュースシリーズエッセイ
1992.12月号 日経ギフト 「ギフトビジネスQ&A」
1993.1月号 ヤマハ発動機㈱ ヤマハニュース「NewYear'sTalking集 PART2」
.04.09 日経流通新聞 「街づくり、発想転換」
.08 商店建築【グランディカンティーナ ムラグチ】
.09 酒販ニュース
.09 商業施設 「今月の店舗」 【大木酒店】
.11 商店建築「創造的ローコストのすすめ」【ツバメヤスポーツ】
1994.01 流通サービス新聞 「ステージ’94」
.03 日経ストアデザイン「バリューデザインへの挑戦」【ツバメヤスポーツ】
.05 日経ストアデザイン「ストアフラッシュ」【キャップラガーズ】
.10 日経ストアデザイン「ストアフラッシュ」【モリタ〈眼鏡・時計・宝飾専門店〉】
1995.01 日経ストアデザイン「ストアフラッシュ」【スタインラガークラブ〈ラグビー ビアバー〉】
.04 日経ストアデザイン編「東京デザイナーズレストラン」【スタインラガークラブ】
.06 日経流通新聞 「和食ベンチャー 躍進のカギは… 」
.06 日経ストアデザイン 「企画ノート スーパーストアの開発」 【オフィスマート】
.08 VISUAL MAGAZINE POP EYE 【オフィスマート】
1995.12 日経ストアデザインストアフラッシュ【ゴールデンドロップ〈NYスタイル ワインバー〉】
1996.01 商店建築 「新業態店拝見」 【ゴールデンドロップ】
.02 VISUAL MAGAZINE POP EYE 【コヤナギスポーツ】
.06 商店建築ショッププランニング6月号増刊 【成城宮崎屋〈酒屋〉】【アルファスポーツ苫小牧店】
1997.04 ニチベイ 「商店の窓、まわりプラン」
.12 商店建築 「新業態店拝見」【ラ・イー】
1998.03 商店建築 【ロステッチリア開国屋】
.06 酒販ビジネス夏季号 特別企画 ワイン専門店&ワインバーの設計コンセプト“エスプリッドヴァン柳屋”“ゴールデンドロップ”を題材に
.09 酒販ビジネス秋季号 これぞ専門店「大木酒店」(東京)商品&売場コンセプト
1998.11 酒販ビジネス年末号 「専門店コンセプトと店舗デザイン」下町情緒残した地下セラーの店“鴬谷萬屋酒店”【酒販店】
.11 全酒協ひろばvol.38 ケース・スタディ店舗改装2例「長野県ムラグチ酒店」「埼玉県酒のかづさ屋」【酒販店】
1999.01 食品衛生 新春特別講座 これからの食品業界の経営戦略を探る
.04 酒販ニュース 「売場づくりからの外国ビール 拡売策」
.05 商店建築 「クレームトラブルバスターズ」
.06 商店建築 「クレームトラブルバスターズ」
.06 酒販ビジネス夏季号 「どうなる酒販流通!!業態別研究 酒専門店像」
.07 商店建築 「クレームトラブルバスターズ」
.08 商店建築 「クレームトラブルバスターズ」
.09 商店建築 「クレームトラブルバスターズ」
.10 商店建築 「クレームトラブルバスターズ」
.11 酒販ビジネス年末号 洋酒パブ・ニュートレンド外国人が寄り集うモータウンハウス2」
.11 商店建築 「クレームトラブルバスターズ」
.12 商店建築 「クレームトラブルバスターズ」
2000.07 パンと菓子の専門誌B&C 冨夢冨夢【ベーカリー】
2000.10 酒販ニュース「お店訪問 たなか屋」【酒販店】
.12 商店建築 「ファサードとロゴ」下町のパン屋 冨夢冨夢【ベーカリー】
.12 酒販ビジネス年末号 商品を強化してこそ改装効果…を実践「酒壱番」 市川/千葉【酒販店】
.12 酒販ビジネス年末号 “醗酵醸造食品販売所”謎の(?)看板掲げる「たなか屋」 明石/兵庫【酒販店】
2001.04 商店建築 「わが会心のプレゼンテーション」
.06 酒販ビジネス夏季号 精肉対面、ワイン対話販売でサポーターづくり「エスポアおかだ」 取手/茨城【酒販店】
.08 商店建築 「オーブンフレッシュ・ベーカリーのデザイン」
2002.04 商店建築 「リカーショップの新しいデザイン」
.08 商店建築 「設計者の提案できる“食”の新しい演出法」
.10 酒販ビジネス秋季号 “売れ筋はつくるもの”を地で行く「すずこう酒店」 新小岩/千葉【酒販店】
2003.12 商店建築 「ファサードデザイン」 呉/山城屋【酒販店】
2004.07 パンニュース2004年夏期特集号「ブーランジェリーKヨコヤマ」【ベーカリー】
2004.12 SANYOホットライン No.238 魅せる売場特集「サンユーストアー中郷店」【食品スーパー】
2005.03 商店建築 「サンユーストアー中郷店」【食品スーパー】
.04 商店建築 「メルヴェーユ」【ブライダルサロン】
.09 商店建築10月号増刊 ショップデザインシリーズ店舗ファサード&外装「ワイン &地酒 山城屋」【酒販店】
2005.10 Cafe' sweets カフェスイーツ vol.55 ケーキ店・パン店開業への道<パン店独立開業!理想の店がオープンしました>「ブーランジェリーKヨコヤマ」【ベーカリー】
2007.05 和道・JMG会報「ネクスト」店舗力最前線「これからの店舗力は五感+直感に訴えるファサードデザイン」
2009.05 月刊ベンチャーリンク 売れるデザイン「ブーランジェリーKヨコヤマ」【ベーカリー】
2009.06 月刊ベンチャーリンク 売れるデザイン「居酒屋つなみ」【居酒屋】
カレンダー
| 02 | 2026/03 | 04 |
| S | M | T | W | T | F | S |
|---|---|---|---|---|---|---|
| 1 | 2 | 3 | 4 | 5 | 6 | 7 |
| 8 | 9 | 10 | 11 | 12 | 13 | 14 |
| 15 | 16 | 17 | 18 | 19 | 20 | 21 |
| 22 | 23 | 24 | 25 | 26 | 27 | 28 |
| 29 | 30 | 31 |
最新記事
(09/06)
(08/30)
(08/06)
(07/30)
(07/27)
最新コメント
[05/15 backlink service]
[10/29 NONAME]
[10/29 NONAME]
[09/16 さかなやひさりん]
[05/29 紅茶専門店リーフィー]
最新トラックバック
フリーエリア
ブログ内検索
最古記事
(01/09)
(01/29)
(01/30)
(02/16)
(09/01)
アクセス解析
