四谷にある店舗デザイン事務所のブログです。新しくオープンするお店の情報や工事中のレポート、ちょっとした店舗デザインのご相談など店舗に関する情報をアップしていきます。最近話題の店や、私たちが見つけた隠れた良店なども御紹介します。
×
[PR]上記の広告は3ヶ月以上新規記事投稿のないブログに表示されています。新しい記事を書く事で広告が消えます。
11月1日、エムアンドアソシエイツが
手掛けた、JR南武線、府中保育園西府分園の
トコトコちゃんランドと京王線中河原、
キッズランド府中保育園の合同落成式が
府中保育園で行われ、私とスタッフの
丸君と出席しました。
会場の府中保育園。
大勢のお客様が見えられていました。
落成式会場です。
落成式次第と見学会、
そして、祝賀会次第表です。
なんとなんと感謝状を頂く事に
なりました。
右よりエムアンドアソシエイツのちば、
中央は西府分園施工業者シフテックの
杉部長、左にキッズランド施工業者の
アートプロジェクトの木村氏です。
エムアンドアソシエイツは、
西府保育園とキッズランド両園から
感謝状を頂きました。
ありがとうございます。
しんみょうな顔で感謝状を頂く、
私、ちばでございます。
お礼の挨拶をしている
私、ちばでございます。
専用バスで、キッズランド・
トコトコちゃんランドへ
見学会です。
最初はキッズランドです。
エムアンドアソシエイツが
送らせて頂いたお花がお客様を
ウェルカム!!
みんさんカラフルな園内を
見学されています。
次はトコトコちゃんランドです。
ここにもエムアンドアソシエイツの
お祝いのお花が…
左下、トコトコちゃんがウェルカム…
祝賀会の初まりです。
ブッフェスタイルの祝賀会です。
お祝いの言葉、
シフテックの杉部長です。
お祝いの言葉、
アートプロジェクトの中村社長です。
アトラクションパフォーマンスショー
ニューゼネレーションカンパニー主宰。
菅原英基さんです。
楽しかった祝賀会ももう終わりに
近づいてきました。
主役の美しい三姉妹??の記念写真です。
真ん中が長女??池田園長先生。
右が次女?(本当は長女)
左がキッズランドの岡本代表です。
着物が大変美しい…
いや、みなさん美人ですよ!
わたしちば(真ん中)杉部長(左)
木村(右)も参加してハイポーズ!!
もう一つおまけに
エムアンドアソシエイツの担当丸君、
アートの中村社長もご一緒に…
いやいや私たちも、
出席の各園長先生も
飛び入り参加〜
皆さん美人ぞろいで
ハイポーズ〜〜!
帰りに、キッズランド岡本代表(真ん中)
右に丸君、左に木村さん。
みんないい顔ですね〜
キッズランドは着工が4月〜10月の
長い施工期間、
西府分園は8月中〜9月中の1ヶ月の
タイトな工程。
なんとか開園にこぎつけました。
両園の子供たちが元気に
明るく、少しワクワク、ドキドキして
過ごして頂ければなと思っております。
繁盛する店づくりなんて当たり前!!
店舗デザイン
エムアンドアソシエイツ
知育玩具
まなびっこあそびっこ
PR
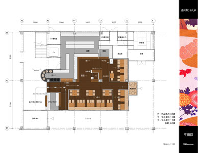
長野県と富山吊の県境い、
人口3000人の小谷村の
道の駅おたりのレストラン
リニューアル<改装>の
コンペです。
昔ここは、千国街道塩の道と
言われたそうです。
道の駅おたり全景
お土産品コーナー1
お土産品コーナー2
なんとなんと
温泉もある道の駅です。
露天風呂。
リニューアルするお食事処入口です。
上記 店内−1
店内−2
道の駅おたり
館内マップ
右側がお食事処です。
道の駅おたり
新宿AM7:30スパーあづさに乗って
南小谷にAM11:40分着いて
南小谷から北小谷までは
JR東海になります。
帰りは
南小谷PM16:09〜信濃大町PM17:06
17:09~松本PM18:11分着
スーパーあづさ32号PM18:35発
新宿PM21:06着の
なんと4時間57分乗っていました。
疲れますよ…
基本方針
模型の写真−1
模型の写真−2
模型の写真−3
エムアンドアソシエイツ初めての
企業施設道の駅のリニューアルです。
温泉もあり、日本百名山雨飾山、
白馬のスキー場、栂池自然園
などなど緑と雪と温泉のふるさと
この人口3000人の村に
新しい風をエムアンドアソシエイツと
力が入ります!!
繁盛する店づくりなんて当たり前!!
店舗デザイン
エムアンドアソシエイツ
ライブレストラン
セレンディップ
エムアンドアソシエイツが手掛けた、
郊外型ライブレストランセレンディップが
高崎(群馬)にオープンしました。
そのレセプションのシーンです〜
外装夕景
外装夕景正面
セレンディップホールに
お祝いのお花がいっぱい〜
なんとなんとあの阪神タイガーズの
真弓監督からのお花です。
セレンディップの女将さんの弟さんが
阪神タイガーズに入団していたらしいです。
北村社長の挨拶。
セレンディップのいわれ、
偶然がもたらす幸福!!
幸せを掴むことを
食の世界で感じて頂ける様、
新しい出会いに合う、
美味しい料理を提供したいと考え、
店内で時間を共有できる
「幸福との出会いの場」をコンセプトの
もとに作り上げたいなどの
お話がありました。
ちなみにシェフも、支配人も
北村社長の同級生です。
そして、私、ちばまさゆきも
お祝いの言葉を述べさせて頂きました。
まずは、タイトな施工期間での
施工に対する感謝、
建築申請などお手伝いして頂いた、
アークギアー大竹さんに感謝、
そして、この偶然がもたらす
幸福の場所、セレンディップに感謝、
北村社長、女将専務、シェフ、支配人の
魂をこのセレンディップに入れて頂き
益々ご繁盛することを心より、
お祈り申し上げますと
お祝いの言葉をかけさせて頂きました。
レセプション参加者が
楽しくお食事している所です。
料理の1部です。
美味しそう〜
帰りのJR高崎駅
内のだるまに
別れをつげ帰京…
セレンディップが益々ご繁盛する
様に合唱!!
繁盛する店づくりなんて当たり前!!
店舗デザイン
エムアンドアソシエイツ
ライブレストラン
セレンディップ
この度、フードビジネスの業種業態別の
店舗設計デザインのノウハウを網羅した、
店舗デザイナー筆携の資料集成、業界動向を
捉えたリアルな考察と
設計に欠かせない基準寸法や
計画例を体系的に図解しています。
飲食店設計マニュアル
-デザイナーのための飲食店設計資料集-
(株)六耀社
ちばまさゆきはP123の
⑵単品料理系
<C>セミセルフサービス型単品料理店
ハンバーグ店の設計マニュアルを
随筆しました。
昨年12月〜2月までの期間で書き上げ
ちょっと大変でした。
実務の中での作業ですが、
実現したハンバーガーショップの
実例なので大変参考になるのではと
自画自賛しております(笑)
是非ご覧頂ければ幸いです。
飲食店設計マニュアル(2009年7月)
-デザイナーのための飲食店設計資料集-
発行所(株)六耀社 定価 本体6000円(税別)
繁盛する店づくりなんて当たり前!!
店舗デザイン
エムアンドアソシエイツ
ライブレストラン
セレンディップ
エムアンドアソシエイツに
またまた無料店舗よろず相談の
電話がかかってきました。
足立区にある子供英会話・保育園です。
開園以来6年が経ち、
リニューアルしたいとの事。
ご都合の良い日を決め、
さっそくお伺いする事になりました。
またまた、お伺いする所が前回の
よろず相談があったお酒屋さんと
同じ舎人ライナー最寄駅なのです。
びっくりですね!!
歩いて行く途中にあった看板です。
なんとなんと
コンビニを利用した
子供英会話保育園です。
入口です。
受付カウンター
下足箱
子供達が仲良く並んで、
英語のテレビを見ていました。
さっそくオーナーにお会いし、
いろいろとお話をお伺いしました。
アメリカの田舎町に留学し、
奥さんは、アメリカ人で
主人とともにこの保育園で
英会話を教えているそうです。
お子さんも園内にいました。
すごく可愛かったです。
コンビニの後に英会話保育園を
開園し6年が経ち、そろそろ
リニューアルしたいとの
事です。
私が最近手掛けた保育園や
子供関連の写真を
見てもらいながら
今後の予定やら
デザイン設計料の
見積書を提出する事で
日程を決め、今日お会する事に
なりました。
なんだか子供、子供がついている
様ですね。
ワクワク!ドキドキ!
楽しい保育園を
ご一緒に体現できればと…
ワクワクです〜
繁盛する店づくりなんて当たり前!!
店舗デザイン
エムアンドアソシエイツ
知育玩具店
まなびっこあそびっこ
カウンター
プロフィール
HN:
ちばまさゆき
HP:
性別:
男性
職業:
店舗デザイナー
自己紹介:
エムアンドアソシエイツはお客様とコミュニケーションのキャッチボールをしながら店舗でザインを体現していく『LOVE COMMUNICATION』心からの対話を大切にさせて頂いております。
1991年新春。今は亡き北海道のクライアントの社長より、「おまえのつくるお店は繁盛する。」と、お褒めを頂いた。単純な私はその言葉に勇気を頂き独立を決意したのです。今までにデザインをした店舗は500件を越え、北は稚内、東は根室、西は五島列島、南は鹿児島まで、日本全国及び韓国、台湾、フランスなど海外の物件も手掛けております。
過去の作品 地域/都道府県/業態/店名
渋 谷/東 京/テーマ居酒屋
町家和食京町恋しぐれ
六本木/東 京/寿司屋
/鮨家きらく
海老名/神奈川/居酒屋
/サザンファンの店 TSUNSMI
六本木/東 京/外国人バー
/モータウンハウス2
和歌山/和歌山/レストラン
/サンクシェール
南浦和/埼 玉/ベーカリー
/ブーランジェリーKヨコヤマ
中 郷/茨 城/食品スーパー
/サンユーストアー
中 山/新 潟/食品スーパー
/カワマツ
和歌山/和歌山/複合商業施設
/モンティグレ
ダイワロイネットホテル和歌山
桜木町/神奈川/ブライダルサロン
/メルヴェーユ
銀 座/東 京/宝石店
/パンゲア
店舗に関することならなんでもどうぞ
詳しくはホームページをご覧下さい!
各入賞 入選
商空間デザイン’85〜’90各入選’93入選
ライティングコンテスト
(松下電工) ダイヤモンド賞 入賞多数
ショップ&インテリアコンテスト
(日本板硝子) 入賞多数
ショップシステムコンペション
(店舗システム協会)’93〜’95’98入選
昭和フロントコンクール
(昭和アルミ) 金賞
著書
・飲食店経営者のための
「これからの厨房づくり」
(店舗計画社団法人日本食品衛生協会)
・飲食設計マニュアル
-デザイナーのための飲食店設計
資料集- (六耀社)2009/07発行
講演
・北海道 三笠市商工会青年部
(これからの街づくりと店づくり)
北海道綜合美術専門学校
(店舗設計について)
・東京 サントリー
(現代の商空間プロデュース)
酒有連東京本部(今、商環境は)
アタック70℃クリーニング業界
(これからの商環境は)
翔友会スポーツ店研修会
(スポーツ店と商環境)
セントラル硝子(株)CIP東京会総会
(商環境と客観的視野)
・静岡 酒有連東日本ブロック研修会
(これからの酒販店は)
・焼津 焼津さかなセンター振興会研修
(商環境とは)
・通産省 ロシア中小企業支援事業
ウラジオストック
「オフィス家具及び店舗業務用
什器製造業開業支援セミナー」
三重鈴鹿イオン専門店セミナー
「これからのディスプレイ」
掲載新聞・雑誌
1991.09.13 日刊工業新聞社 流通サービス新聞 「チャレンジ」
.09.26 日経流通新聞 「発 流行人(しかけにん)」
1992.04.09 日経流通新聞 「街づくり、店づくり」
.新春号 郵便貯金ビジネス情報「ザ・ネットワーク アイデアの周辺◆人」
.1月号 ㈱神戸製鋼軽合金伸銅事業本部 けいしんニュースシリーズエッセイ
1992.12月号 日経ギフト 「ギフトビジネスQ&A」
1993.1月号 ヤマハ発動機㈱ ヤマハニュース「NewYear'sTalking集 PART2」
.04.09 日経流通新聞 「街づくり、発想転換」
.08 商店建築【グランディカンティーナ ムラグチ】
.09 酒販ニュース
.09 商業施設 「今月の店舗」 【大木酒店】
.11 商店建築「創造的ローコストのすすめ」【ツバメヤスポーツ】
1994.01 流通サービス新聞 「ステージ’94」
.03 日経ストアデザイン「バリューデザインへの挑戦」【ツバメヤスポーツ】
.05 日経ストアデザイン「ストアフラッシュ」【キャップラガーズ】
.10 日経ストアデザイン「ストアフラッシュ」【モリタ〈眼鏡・時計・宝飾専門店〉】
1995.01 日経ストアデザイン「ストアフラッシュ」【スタインラガークラブ〈ラグビー ビアバー〉】
.04 日経ストアデザイン編「東京デザイナーズレストラン」【スタインラガークラブ】
.06 日経流通新聞 「和食ベンチャー 躍進のカギは… 」
.06 日経ストアデザイン 「企画ノート スーパーストアの開発」 【オフィスマート】
.08 VISUAL MAGAZINE POP EYE 【オフィスマート】
1995.12 日経ストアデザインストアフラッシュ【ゴールデンドロップ〈NYスタイル ワインバー〉】
1996.01 商店建築 「新業態店拝見」 【ゴールデンドロップ】
.02 VISUAL MAGAZINE POP EYE 【コヤナギスポーツ】
.06 商店建築ショッププランニング6月号増刊 【成城宮崎屋〈酒屋〉】【アルファスポーツ苫小牧店】
1997.04 ニチベイ 「商店の窓、まわりプラン」
.12 商店建築 「新業態店拝見」【ラ・イー】
1998.03 商店建築 【ロステッチリア開国屋】
.06 酒販ビジネス夏季号 特別企画 ワイン専門店&ワインバーの設計コンセプト“エスプリッドヴァン柳屋”“ゴールデンドロップ”を題材に
.09 酒販ビジネス秋季号 これぞ専門店「大木酒店」(東京)商品&売場コンセプト
1998.11 酒販ビジネス年末号 「専門店コンセプトと店舗デザイン」下町情緒残した地下セラーの店“鴬谷萬屋酒店”【酒販店】
.11 全酒協ひろばvol.38 ケース・スタディ店舗改装2例「長野県ムラグチ酒店」「埼玉県酒のかづさ屋」【酒販店】
1999.01 食品衛生 新春特別講座 これからの食品業界の経営戦略を探る
.04 酒販ニュース 「売場づくりからの外国ビール 拡売策」
.05 商店建築 「クレームトラブルバスターズ」
.06 商店建築 「クレームトラブルバスターズ」
.06 酒販ビジネス夏季号 「どうなる酒販流通!!業態別研究 酒専門店像」
.07 商店建築 「クレームトラブルバスターズ」
.08 商店建築 「クレームトラブルバスターズ」
.09 商店建築 「クレームトラブルバスターズ」
.10 商店建築 「クレームトラブルバスターズ」
.11 酒販ビジネス年末号 洋酒パブ・ニュートレンド外国人が寄り集うモータウンハウス2」
.11 商店建築 「クレームトラブルバスターズ」
.12 商店建築 「クレームトラブルバスターズ」
2000.07 パンと菓子の専門誌B&C 冨夢冨夢【ベーカリー】
2000.10 酒販ニュース「お店訪問 たなか屋」【酒販店】
.12 商店建築 「ファサードとロゴ」下町のパン屋 冨夢冨夢【ベーカリー】
.12 酒販ビジネス年末号 商品を強化してこそ改装効果…を実践「酒壱番」 市川/千葉【酒販店】
.12 酒販ビジネス年末号 “醗酵醸造食品販売所”謎の(?)看板掲げる「たなか屋」 明石/兵庫【酒販店】
2001.04 商店建築 「わが会心のプレゼンテーション」
.06 酒販ビジネス夏季号 精肉対面、ワイン対話販売でサポーターづくり「エスポアおかだ」 取手/茨城【酒販店】
.08 商店建築 「オーブンフレッシュ・ベーカリーのデザイン」
2002.04 商店建築 「リカーショップの新しいデザイン」
.08 商店建築 「設計者の提案できる“食”の新しい演出法」
.10 酒販ビジネス秋季号 “売れ筋はつくるもの”を地で行く「すずこう酒店」 新小岩/千葉【酒販店】
2003.12 商店建築 「ファサードデザイン」 呉/山城屋【酒販店】
2004.07 パンニュース2004年夏期特集号「ブーランジェリーKヨコヤマ」【ベーカリー】
2004.12 SANYOホットライン No.238 魅せる売場特集「サンユーストアー中郷店」【食品スーパー】
2005.03 商店建築 「サンユーストアー中郷店」【食品スーパー】
.04 商店建築 「メルヴェーユ」【ブライダルサロン】
.09 商店建築10月号増刊 ショップデザインシリーズ店舗ファサード&外装「ワイン &地酒 山城屋」【酒販店】
2005.10 Cafe' sweets カフェスイーツ vol.55 ケーキ店・パン店開業への道<パン店独立開業!理想の店がオープンしました>「ブーランジェリーKヨコヤマ」【ベーカリー】
2007.05 和道・JMG会報「ネクスト」店舗力最前線「これからの店舗力は五感+直感に訴えるファサードデザイン」
2009.05 月刊ベンチャーリンク 売れるデザイン「ブーランジェリーKヨコヤマ」【ベーカリー】
2009.06 月刊ベンチャーリンク 売れるデザイン「居酒屋つなみ」【居酒屋】
1991年新春。今は亡き北海道のクライアントの社長より、「おまえのつくるお店は繁盛する。」と、お褒めを頂いた。単純な私はその言葉に勇気を頂き独立を決意したのです。今までにデザインをした店舗は500件を越え、北は稚内、東は根室、西は五島列島、南は鹿児島まで、日本全国及び韓国、台湾、フランスなど海外の物件も手掛けております。
過去の作品 地域/都道府県/業態/店名
渋 谷/東 京/テーマ居酒屋
町家和食京町恋しぐれ
六本木/東 京/寿司屋
/鮨家きらく
海老名/神奈川/居酒屋
/サザンファンの店 TSUNSMI
六本木/東 京/外国人バー
/モータウンハウス2
和歌山/和歌山/レストラン
/サンクシェール
南浦和/埼 玉/ベーカリー
/ブーランジェリーKヨコヤマ
中 郷/茨 城/食品スーパー
/サンユーストアー
中 山/新 潟/食品スーパー
/カワマツ
和歌山/和歌山/複合商業施設
/モンティグレ
ダイワロイネットホテル和歌山
桜木町/神奈川/ブライダルサロン
/メルヴェーユ
銀 座/東 京/宝石店
/パンゲア
店舗に関することならなんでもどうぞ
詳しくはホームページをご覧下さい!
各入賞 入選
商空間デザイン’85〜’90各入選’93入選
ライティングコンテスト
(松下電工) ダイヤモンド賞 入賞多数
ショップ&インテリアコンテスト
(日本板硝子) 入賞多数
ショップシステムコンペション
(店舗システム協会)’93〜’95’98入選
昭和フロントコンクール
(昭和アルミ) 金賞
著書
・飲食店経営者のための
「これからの厨房づくり」
(店舗計画社団法人日本食品衛生協会)
・飲食設計マニュアル
-デザイナーのための飲食店設計
資料集- (六耀社)2009/07発行
講演
・北海道 三笠市商工会青年部
(これからの街づくりと店づくり)
北海道綜合美術専門学校
(店舗設計について)
・東京 サントリー
(現代の商空間プロデュース)
酒有連東京本部(今、商環境は)
アタック70℃クリーニング業界
(これからの商環境は)
翔友会スポーツ店研修会
(スポーツ店と商環境)
セントラル硝子(株)CIP東京会総会
(商環境と客観的視野)
・静岡 酒有連東日本ブロック研修会
(これからの酒販店は)
・焼津 焼津さかなセンター振興会研修
(商環境とは)
・通産省 ロシア中小企業支援事業
ウラジオストック
「オフィス家具及び店舗業務用
什器製造業開業支援セミナー」
三重鈴鹿イオン専門店セミナー
「これからのディスプレイ」
掲載新聞・雑誌
1991.09.13 日刊工業新聞社 流通サービス新聞 「チャレンジ」
.09.26 日経流通新聞 「発 流行人(しかけにん)」
1992.04.09 日経流通新聞 「街づくり、店づくり」
.新春号 郵便貯金ビジネス情報「ザ・ネットワーク アイデアの周辺◆人」
.1月号 ㈱神戸製鋼軽合金伸銅事業本部 けいしんニュースシリーズエッセイ
1992.12月号 日経ギフト 「ギフトビジネスQ&A」
1993.1月号 ヤマハ発動機㈱ ヤマハニュース「NewYear'sTalking集 PART2」
.04.09 日経流通新聞 「街づくり、発想転換」
.08 商店建築【グランディカンティーナ ムラグチ】
.09 酒販ニュース
.09 商業施設 「今月の店舗」 【大木酒店】
.11 商店建築「創造的ローコストのすすめ」【ツバメヤスポーツ】
1994.01 流通サービス新聞 「ステージ’94」
.03 日経ストアデザイン「バリューデザインへの挑戦」【ツバメヤスポーツ】
.05 日経ストアデザイン「ストアフラッシュ」【キャップラガーズ】
.10 日経ストアデザイン「ストアフラッシュ」【モリタ〈眼鏡・時計・宝飾専門店〉】
1995.01 日経ストアデザイン「ストアフラッシュ」【スタインラガークラブ〈ラグビー ビアバー〉】
.04 日経ストアデザイン編「東京デザイナーズレストラン」【スタインラガークラブ】
.06 日経流通新聞 「和食ベンチャー 躍進のカギは… 」
.06 日経ストアデザイン 「企画ノート スーパーストアの開発」 【オフィスマート】
.08 VISUAL MAGAZINE POP EYE 【オフィスマート】
1995.12 日経ストアデザインストアフラッシュ【ゴールデンドロップ〈NYスタイル ワインバー〉】
1996.01 商店建築 「新業態店拝見」 【ゴールデンドロップ】
.02 VISUAL MAGAZINE POP EYE 【コヤナギスポーツ】
.06 商店建築ショッププランニング6月号増刊 【成城宮崎屋〈酒屋〉】【アルファスポーツ苫小牧店】
1997.04 ニチベイ 「商店の窓、まわりプラン」
.12 商店建築 「新業態店拝見」【ラ・イー】
1998.03 商店建築 【ロステッチリア開国屋】
.06 酒販ビジネス夏季号 特別企画 ワイン専門店&ワインバーの設計コンセプト“エスプリッドヴァン柳屋”“ゴールデンドロップ”を題材に
.09 酒販ビジネス秋季号 これぞ専門店「大木酒店」(東京)商品&売場コンセプト
1998.11 酒販ビジネス年末号 「専門店コンセプトと店舗デザイン」下町情緒残した地下セラーの店“鴬谷萬屋酒店”【酒販店】
.11 全酒協ひろばvol.38 ケース・スタディ店舗改装2例「長野県ムラグチ酒店」「埼玉県酒のかづさ屋」【酒販店】
1999.01 食品衛生 新春特別講座 これからの食品業界の経営戦略を探る
.04 酒販ニュース 「売場づくりからの外国ビール 拡売策」
.05 商店建築 「クレームトラブルバスターズ」
.06 商店建築 「クレームトラブルバスターズ」
.06 酒販ビジネス夏季号 「どうなる酒販流通!!業態別研究 酒専門店像」
.07 商店建築 「クレームトラブルバスターズ」
.08 商店建築 「クレームトラブルバスターズ」
.09 商店建築 「クレームトラブルバスターズ」
.10 商店建築 「クレームトラブルバスターズ」
.11 酒販ビジネス年末号 洋酒パブ・ニュートレンド外国人が寄り集うモータウンハウス2」
.11 商店建築 「クレームトラブルバスターズ」
.12 商店建築 「クレームトラブルバスターズ」
2000.07 パンと菓子の専門誌B&C 冨夢冨夢【ベーカリー】
2000.10 酒販ニュース「お店訪問 たなか屋」【酒販店】
.12 商店建築 「ファサードとロゴ」下町のパン屋 冨夢冨夢【ベーカリー】
.12 酒販ビジネス年末号 商品を強化してこそ改装効果…を実践「酒壱番」 市川/千葉【酒販店】
.12 酒販ビジネス年末号 “醗酵醸造食品販売所”謎の(?)看板掲げる「たなか屋」 明石/兵庫【酒販店】
2001.04 商店建築 「わが会心のプレゼンテーション」
.06 酒販ビジネス夏季号 精肉対面、ワイン対話販売でサポーターづくり「エスポアおかだ」 取手/茨城【酒販店】
.08 商店建築 「オーブンフレッシュ・ベーカリーのデザイン」
2002.04 商店建築 「リカーショップの新しいデザイン」
.08 商店建築 「設計者の提案できる“食”の新しい演出法」
.10 酒販ビジネス秋季号 “売れ筋はつくるもの”を地で行く「すずこう酒店」 新小岩/千葉【酒販店】
2003.12 商店建築 「ファサードデザイン」 呉/山城屋【酒販店】
2004.07 パンニュース2004年夏期特集号「ブーランジェリーKヨコヤマ」【ベーカリー】
2004.12 SANYOホットライン No.238 魅せる売場特集「サンユーストアー中郷店」【食品スーパー】
2005.03 商店建築 「サンユーストアー中郷店」【食品スーパー】
.04 商店建築 「メルヴェーユ」【ブライダルサロン】
.09 商店建築10月号増刊 ショップデザインシリーズ店舗ファサード&外装「ワイン &地酒 山城屋」【酒販店】
2005.10 Cafe' sweets カフェスイーツ vol.55 ケーキ店・パン店開業への道<パン店独立開業!理想の店がオープンしました>「ブーランジェリーKヨコヤマ」【ベーカリー】
2007.05 和道・JMG会報「ネクスト」店舗力最前線「これからの店舗力は五感+直感に訴えるファサードデザイン」
2009.05 月刊ベンチャーリンク 売れるデザイン「ブーランジェリーKヨコヤマ」【ベーカリー】
2009.06 月刊ベンチャーリンク 売れるデザイン「居酒屋つなみ」【居酒屋】
カレンダー
| 02 | 2026/03 | 04 |
| S | M | T | W | T | F | S |
|---|---|---|---|---|---|---|
| 1 | 2 | 3 | 4 | 5 | 6 | 7 |
| 8 | 9 | 10 | 11 | 12 | 13 | 14 |
| 15 | 16 | 17 | 18 | 19 | 20 | 21 |
| 22 | 23 | 24 | 25 | 26 | 27 | 28 |
| 29 | 30 | 31 |
最新記事
(09/06)
(08/30)
(08/06)
(07/30)
(07/27)
最新コメント
[05/15 backlink service]
[10/29 NONAME]
[10/29 NONAME]
[09/16 さかなやひさりん]
[05/29 紅茶専門店リーフィー]
最新トラックバック
フリーエリア
ブログ内検索
最古記事
(01/09)
(01/29)
(01/30)
(02/16)
(09/01)
アクセス解析
